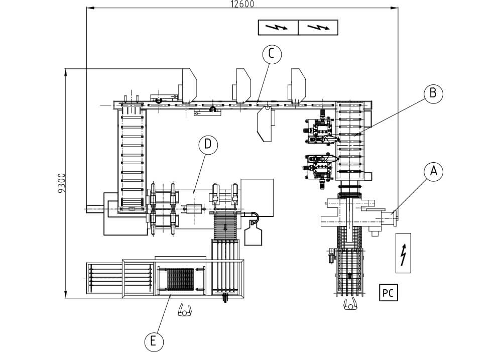
Pos. A
Saldatrice di nuova generazione a scintillio, adatta a saldare il fondello al radiatore a mezzo di trasformatore di Corrente 300 A, una volta saldato il radiatore passa nella zona di tranciatura dove vengono in automatico eliminate le bave di saldatura.
Pos. B
Passo pellegrino con carro aereo comandato da motore brushless adatto a prelevare il radiatore dalla saldatrice e portarlo nelle varie stazioni di lavoro ovvero:
- Smerigliatura aletta inferiore per eliminazione bave di fusione.
- Prima unità a CNC per sgrossatura testata con trancia bave.
- Gruppo tranciatura bave zono inferiore radiatore.
- Seconda unità CNC per finitura testata con trancia bave di fusione.
Pos. C
Nastro smerigliatura fiancate, completo di guide, spintori, parti meccaniche, pneumatiche e di un motoriduttore.
È inclusa una catena speciale con relativi pignoni e un gruppo spintore, su nastro di alimentazione linea di lavorazione meccanica completo di parti meccaniche, pneumatiche e scivolo scarico pezzi. Al nastro sono applicate n° 3 unità di smerigliatura a pattino pneumatico in widia con nastro abrasivo adatte alla smerigliatura della fiancata radiatore, dotate di lubrificazione per oscillazione. Queste unità servono per la smerigliatura della fiancata del radiatore (lato migliore). Inoltre, sempre per la smerigliatura della parte anteriore è montata una spazzola abrasiva per la finitura.
Per la parte posteriore è fissata al nastro n° 1 unità di smerigliatura a rullo gommato, con nastro abrasivo oscillante e tendi nastro, per la lavorazione della fiancata posteriore del radiatore. Inoltre, sempre per la smerigliatura della parte posteriore è montata una spazzola abrasiva per la finitura.
Pos. D
Macchina filettatrice automatica radiatori così composta:
- Carro traslatore che sposta i radiatori da una zona di lavoro all’altra.
- N. 4 unità speciali di nostra produzione per filettatura e lamatura radiatori. Queste unità di ultima generazione sono dotate al loro interno di cuscinetti di precisione e non hanno al loro interno ne olio né bronzine garantendo quindi una durata illimitata.
- Gruppo soffiaggio interno per eliminazione dei trucioli.
- Gruppo di assiematura con n. 2 avvitatori di nostra produzione comandati da motori brushless.
- Gruppo carico niples e montaggio guarnizioni automatico. Questo gruppo monterà le guarnizioni sul niples in modo completamente automatico.
Pos. E
Gruppo vasca prova automatica in acqua per provare la tenuta delle batterie di radiatori da 3 a 14 elementi, la batteria di radiatori viene immersa nell’acqua e testata con una pressione di 24 bar per verificare eventuali perdite.


























