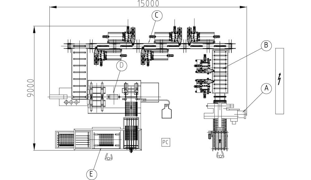
Pos. A
Saldatrice di nuova generazione a scintillio, adatta a saldare il fondello al radiatore a mezzo di trasformatore di Corrente 300 A, una volta saldato il radiatore passa nella zona di tranciatura dove vengono in automatico eliminate le bave di saldatura.
Pos. B
Passo pellegrino con carro aereo comandato da motore brushless adatto a prelevare il radiatore dalla saldatrice e portarlo nelle varie stazioni di lavoro ovvero:
- Smerigliatura aletta inferiore per eliminazione bave di fusione.
- Prima unità a CNC per sgrossatura testata con trancia bave.
- Gruppo tranciatura bave zono inferiore radiatore.
- Seconda unità CNC per finitura testata con trancia bave di fusione.
Pos. C
Gruppo lavorazione fiancate anteriore e posteriore dotato di un basamento di grosso spessore per evitare vibrazioni nella smerigliatura, il radiatore durante la smerigliatura è bloccato e fermo, sono le unità a CNC che si muovono e lo smerigliano. È applicato sul basamento un traslatore adatto a spostare i radiatori nelle varie stazioni di lavoro comandato da motore brushless. Al Gruppo sono applicate sul lato anteriore n° 3 unità speciale a controllo montata su guide a croce comandate da assi controllati per esecuzione fiancate anteriore del radiatore sia tonde raggiate sia diritte. Questa unità permette di lavorare qualsiasi forma del radiatore. Queste unità servono per la smerigliatura della fiancata anteriore del radiatore. Si utilizzeranno 3 tele abrasive con grane diverse. La prima unità monterà un nastro abrasivo con grana 50, la seconda unità con grana 60 e la terza unità con grana 80.
Sul lato posteriore sono applicate n° 2 unità speciale a controllo montata su guide a croce comandata da assi controllati per esecuzione fiancate posteriore del radiatore sia tonde raggiate sia diritte. Questa unità permette di lavorare qualsiasi forma del radiatore. Questa unità serve per la smerigliatura della fiancata posteriore del radiatore. Si utilizzeranno 2 tela abrasiva con grana 50-80.
Pos. D
Macchina filettatrice automatica radiatori così composta:
- Carro traslatore che sposta i radiatori da una zona di lavoro all’altra.
- N. 4 unità speciali di nostra produzione per filettatura e lamatura radiatori. Queste unità di ultima generazione sono dotate al loro interno di cuscinetti di precisione e non hanno al loro interno ne olio né bronzine garantendo quindi una durata illimitata.
- Gruppo soffiaggio interno per eliminazione dei trucioli.
- Gruppo di assiematura con n. 2 avvitatori di nostra produzione comandati da motori brushless.
- Gruppo carico niples e montaggio guarnizioni automatico. Questo gruppo monterà le guarnizioni sul niples in modo completamente automatico.
Pos. E
Gruppo vasca prova automatica in acqua per provare la tenuta delle batterie di radiatori da 3 a 14 elementi, la batteria di radiatori viene immersa nell’acqua e testata con una pressione di 24 bar per verificare eventuali perdite.


























